рефераты скачать
 
Главная | Карта сайта
рефераты скачать
РАЗДЕЛЫ

рефераты скачать
ПАРТНЕРЫ

рефераты скачать
АЛФАВИТ
... А Б В Г Д Е Ж З И К Л М Н О П Р С Т У Ф Х Ц Ч Ш Щ Э Ю Я

рефераты скачать
ПОИСК
Введите фамилию автора:


Курсовая работа: Электроснабжение цеха обработки корпусных деталей

Курсовая работа: Электроснабжение цеха обработки корпусных деталей

Федеральное агентство по образованию

ФГОУ СПО «Оскольский политехнический колледж»

Курсовой проект

по дисциплине

«Электроснабжение отрасли»

Тема «Электроснабжение цеха обработки корпусных деталей»

Старый Оскол, 2010


Содержание

Введение

1 Общая часть

1.1 Выбор категории надёжности

1.2 Выбор схемы электроснабжения

1.3 Выбор напряжения для внутризаводского оборудования

1.4 Описание выбранной коммутационной аппаратуры

1.1.1 Общие сведения о трансформаторах

1.1.2 Общие сведения об автоматических выключателях

1.1.3 Общие сведения о высоковольтном выключателе

1.1.4 Общие сведения о потере напряжения

1.1.5 Общие сведения о коротких замыканиях

2. Специальная часть

2.1 Расчёт силовых электрических нагрузок

2.2 Расчет токов короткого замыкания

2.3 Выбор оборудования трансформаторной подстанции:

2.3.1 Выбор трансформатора

2.3.2 Выбор высоковольтного выключателя

2.3.3 Выбор автоматического выключателя

2.3.4 Выбор отделителя и короткозамыкателя

2.4 Выбор компенсирующего устройства

2.5 Выбор питающего кабеля для цеховой трансформаторной подстанции

2.6 Расчет молниезащиты трансформаторной подстанции

2.7 Расчет защитного заземления трансформаторной подстанции

3. Техника безопасности

3.1 Управление охраной труда на предприятии

3.2 Организационные вопросы безопасности труда

3.3 Требования к электротехническому персоналу

3.4 Технические мероприятия обеспечивающие безопасность работ

Заключение

Список используемой литературы


Информативный реферат

Курсовой проект на тему электроснабжения цеха по обработке корпусных деталей

Курсовая работа включает в себя общую часть, специальную часть и охрану труда.

В общей части была выбрана категория надежности электроснабжения предприятия, схема электроснабжения цеха, напряжение для внутрицехового электроснабжения.

В специальной части были рассчитаны по различным формулам (в сумме которых 44): электрические нагрузки цеха, токи короткого замыкания, выбран трансформатор, автоматический и высоковольтный выключатель, отделитель и короткозамыкатель, питающий кабель. Так же в курсовой имеется 5 рисунков.

В охране труда были рассмотрены вопросы управления охраной труда на предприятии и организационные вопросы безопасности труда.

Курсовая состоит из 39 листов и 1 приложения, также выполнена графическая часть из двух листов, на которых изображены план распределения электроэнергии по цеху и схемы молниезащиты и защитного заземления трансформаторной подстанции.


Введение

Системой электроснабжения называется совокупность устройств для производства, передачи и распределения электрической энергии.

В условиях производства, где задействована основная часть технологических агрегатов, надёжность системы электроснабжения играет важную роль.

Целью в данном курсовом проекте является электроснабжение цеха обработки корпусных деталей. Основное оборудование размещено в станочном отделении. Так же в цехе предусматриваются вспомогательные, служебные и бытовые помещения различного назначения

Задачей курсового проекта - расчет и выбор системы электроснабжения, выбор оборудования трансформаторной подстанции, выбор категории надежности; расчет электрических нагрузок и т.д.

Объектом исследования является электроснабжение цеха обработки корпусных деталей.

Применение научно – технической литературы и современной информации, позволило оптимально решить все приведённые в задании вопросы.


1. Общая часть

1.1      Выбор категории надёжности

Электрооборудование цеха обработки корпусных деталей относится ко 2 категории надежности, так как при перерыве в электроснабжении произойдет остановка оборудования, массовый простой рабочих мест, механизмов и промышленного транспорта, массовый недоотпуск продукции.

Электроприемники II категория рекомендуется обеспечивать электроэнергией от двух независимых, взаимно резервирующих источников питания.

Для электроприемников II категории при нарушении электроснабжения от одного из источников питания допустимы перерывы электроснабжения на время, необходимое для включения резервного питания действиями дежурного персонала или выездной оперативной бригады.

Допускается питание электроприемников II категории по одной ВЛ, в том числе с кабельной вставкой, если обеспечена возможность проведения аварийного ремонта этой линии за время нё более 1 суток.

1.2 Выбор схемы электроснабжения

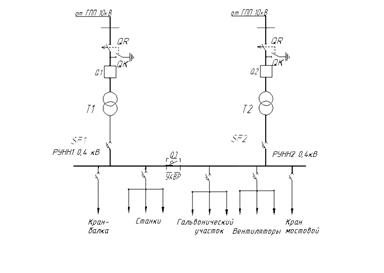
Согласно требованиям ПУЭ электроснабжение второй категории надежности выполняется от двух независимых источников. Допускается перерыв на время включения резервного источника дежурным персоналом. Время максимального отключения составляет 30 минут. Допускается питание от одного источника с горячим резервом (рисунок 1).

Так же допускается питание от двух независимых источников (рисунок 2).


Рисунок 1 - Схема электроснабжения цеха по обработке корпусных деталей с горячим резервом

Так же допускается питание от двух независимых источников (рисунок 2).

Рисунок 2 - Схема электроснабжения от двух независимых источников питания


Данная схема питается от ГПП напряжением 10 кВ. Напряжение 10 кВ подается с ГПП на отделители с короткозамыкателями. После чего через высоковольтные выключатели напряжение поступает на первичную обмотку понижающих трансформаторов и понижается на них до напряжения 0,4 кВ. Пониженное напряжение поступает на РУНН1 и РУНН2. От сборных шин питаются вентиляторы, станки и мостовой кран. Защиту данной схемы обеспечивают отделители (QR), короткозамыкатели (QК) и автоматические выключатели SF1, SF2. Предусмотрено устройство автоматического включения резерва (УАВР), которое предназначено для быстрого включения трансформатора Т2 при аварии или повреждении трансформатора Т1 и наоборот.

1.3      Выбор напряжения для внутризаводского оборудования

В выданном задании напряжение ГПП 10кВ, значит нам необходимо выбрать напряжение РУНН. На основании имеющегося оборудования которое питается от напряжения 380 В, мы выбираем напряжение РУНН равное 0,4 кВ, так как при выборе вариантов предпочтение следует отдавать варианту с более высоким напряжением даже при небольших экономических преимуществах низшего из сравниваемых напряжений[1], потому что из-за удаления ЭП от РУНН в линиях происходит нагрев, и часть электрической энергии преобразуется в тепловую и отдаётся в окружающую среду. Вследствие чего происходят тепловые потери, и к ЭП подходит напряжение 380 В.

1.4      Описание выбранной коммутационной аппаратуры

1.4.1 Общие сведения о трансформаторах

Трансформаторы являются основным электрическим оборудованием, обеспечивающим передачу и распределение электроэнергии от электрических станций потребителя. Большинство потребителей получат электроэнергию высокого напряжения в энергию напряжения, применяемого потребителем. В схеме есть два двухобмоточных понижающих трансформатора, марки ТМ400/10, который понижает напряжения от 10 кв. до 0,4 кв.

1.4.2 Общие сведения об автоматических выключателях

Автоматические выключатели обеспечивают одновременно функции коммутации силовых цепей (токи от единиц ампер до десятков тысяч) и защиты электроприемника, а также сетей от перегрузки и коротких замыканий. Аппараты имеют тепловой расцепитель и, как правило, электродинамический расцепитель. Автоматы, как правило, снабжаются дугогасящими устройствами в виде фибровых пластин либо дугогасящих камер.

Автоматы используются для коммутации и защиты цепей электроустановок различного назначения, электродвигателей. Они устанавливаются в шкафах отходящих линий комплектных трансформаторных подстанций и т. д.

Автоматы выпускаются на переменные напряжения от 220 до 660 В и постоянные – от 110 до 440 В с ручным и электродвигательным приводом.

1.4.3 Общие сведения о высоковольтном выключателе

Высоковольтный выключатель предназначен для защиты сетей от токов короткого замыкания. Правильный расчет параметров высоковольтных выключателей это гарантия защиты электрических сетей от ненормальных режимов работы.

В схеме имеются масляные выключатели, марки ВМГП-10. Четкая работа выключателя ограничивает распространение аварии в электроустановки, следовательно, выключатель является наиболее ответственным элементом распределительного устройства. В зависимости от применяемой дугогасительной среды выключатели бывают жидкостные и газовые; из них наиболее распространены масленые и воздушные, горшковые или малообъемные, в которых трансформаторное масло используют только как средство для гашения дуги; баски этих выключателей во время работы находятся под напряжением, поэтому их изолируют от заземленных частей наружными изоляторами. Дугогасительные камеры изолируют от заземленных частей с помощью керамических и изоляционных материалов. При напряжении 35 кВ и выше гасительные камеры малообъемных выключателей заключают в фарфоровые рубашки.

1.4.4 Общие сведения о потере напряжения

Передача электрической энергии от источников питания потребителем связано с потерей части мощности и энергии в системе электроснабжения. Эти потери определяются током, протекающим по линиям, и величиной передаваемого напряжения. Эти потери нужно знать и рассчитывать и сводить к минимуму для экономии электроэнергии.

Потери энергии больше связанны с потерями электроэнергии в линиях электропередач. Эти потери зависят от сопротивления линии, от тока в них, и от времени потерь.

Следовательно, для их уменьшения нужно уменьшать величину линии (то есть при наличии парных линий их нужно

подключать параллельно).

Так же для уменьшения потерь в сетях промышленных предприятий применяют повышенное напряжение (660 В и 20 кВ). уменьшение всех видов потерь экономически выгодно предприятиям и поэтому они заинтересованы в их уменьшении до минимальных значений. Согласно ПУЭ и ГОСТ, для силовых сетей отклонении напряжения от номинального должно составлять не более +/- 5%.


1.4.5   Общие сведения о коротких замыканиях

Коротким замыканием называется всякое случайное или преднамеренное не предусмотренное нормальным режимом работы электрическое соединение точек электроустановки между собой или землей при котором токи в ветвях электроустановки резко возрастают превышая наибольший допустимый ток продолжительного режима.

Короткие замыкания делятся на устойчивые и неустойчивые.

Короткое замыкание является устойчивым если оно сохраняется во время бестоковой паузы коммутационного аппарата.

Неустойчивое короткое замыкание самоликвидируется во время бестоковой паузы коммутационного аппарата.

электроснабжение трансформаторная подстанция


2. Специальная часть

2.1 Расчет электрических нагрузок

1. Группируем электроприемники по величине коэффициента использования КИ :

Количество электроприемников в первой группе- 8штук;

Количество электроприемников во второй группе- 25 штук;

Количество электроприемников в третьей группе- 16 штук;

Всего электроприемников: 49 штук.

2. Определяем номинальные активные мощности электроприемников с одинаковыми технологическим процессом, но с разной мощностью по формуле:

Рн=n*pн                                                                                                                                                       (1);

n- количество электроприемников;

pн- номинальная мощность одного электроприемника;

Для первой группы электроприемников:

Кран- балка Рн1=2*14,4=28,8 кВт;

Мостовой кран Рн2=1*68=68 кВт;

Заточные станки Рн3=1*1,5=1,5 кВт;

Вертикально-сверлильные станки Рн4=4*10=40 кВт;

Для второй группы электроприемников:

Алмазно-расточные станки Рн5=4*8=32 кВт;

Горизонтально-расточные станки Рн6=5*20=100 кВт;

Расточные станки Рн7=3*14=42 кВт;

Токарно-револьверные станки Рн8=6*4,5=27 кВт;

Сварочные автоматы Рн9=2*14,4=28,8 кВт;

Радиально- сверлильные станки Рн10=5*12=60 кВт;

Для третьей группы электроприемников:

Вентиляторы Рн11=6*8=48 кВт;

Компрессоры Рн12=2*30=60 кВт;

Гальванические ванны Рн13=6*32=192 кВт;

Электропечи сопротивления Рн14=2*32=64 кВт;

Определяем суммарную мощность для каждой группы по формуле:

Рн=ΣРнn                                                                                                                                                        (2);

Рнn- суммарная мощность в каждой группе, где n- номер группы.

Рн1=28,8+68+1,5+40=138,3 кВт;

Рн2=32+100+42+27+28,8+60=289,8 кВт;

Рн3=48+60+192+64=364 кВт;

Находим общую мощность в цехе по формуле:

Рн=Рн1+Рн2+Рн3

Рн=138,3+289,8+364=792,1 кВт

3. Определяем сменную активную мощность за наиболее загруженную смену по формуле:

РСМ = КИ*Рн                                                                                                                                            (3);

КИ- коэффициент использования

РСМ- сменная активная мощность за наибольшую загруженную смену

Для первой группы электроприемников:

РСМ1=28,8*0,1=2,8 кВт;

РСМ2=68*0,1=6,8 кВт;

РСМ3=1,5*0,12=0,18 кВт;

РСМ4=40*0,14=5,6 кВт;

Аналогично рассчитываем сменную активную мощность за наиболее загруженную смену для второй и третьей группы.

Находим общую сменную активную мощность за наиболее загруженную смену:

РСМ= Σ РСМ

Σ РСМ=2,8+6,8+0,18+5,6+5,44+17+7,14+4,59+5,76+18+31,2+45+134,4+44,8 = 328,71 кВт

Заносим полученные значения в колонку 7 таблицы 1.

4. Рассчитываем сменную реактивную мощность по формуле:

Qсм= Рсм*tgφ                                                                                   (4);

Для первой группы электроприемников:

Qсм1=2,8*1,73=4,8 кВар;

Qсм2=68*1,73=11,7 кВар;

Qсм3=0,18*2,29=0,41 кВар;

Qсм4=5,6*2,35=13,16 кВар;

Аналогично рассчитываем сменную реактивную мощность для второй и третьей группы.

Находим суммарную сменную реактивную мощность:

Qсм=SQсм

SQсм=4,8+11,7+0,41+13,16+12,8+39,9+8,28+5,28+13,19+42,3+23,4+27,9+98,1+45,69=407,26 кВар

Заносим полученные значения в колонку 8 таблицы 1.

5. Определяем для каждого типа электроприемников величины

РН2 n и их суммарное значение для группы:

Для первой группы электроприемников:

РН2 n1=2*14,42=414,7

РН2 n2=1*682=4624

РН2 n3=1*1,52=2,25

РН2 n4=4*102=400

Аналогично рассчитываем РН2 n для второй и третьей группы.

Находим суммарный РН2 n для всего цеха:

РН2 n=SРН 2 *n

SРН 2 n=414,7+4624+2,25+400+256+2000+588+121,5+414,7+720+384+

1800+6144+2048=19917,1

Заносим полученные значения в колонку 9 таблицы 1.

6. Рассчитываем эффективное число электроприемников по формуле:

nэ=Рн2/SРН2*n (5);

nэ- эффективное число электроприемников

Для первой группы электроприемников:


Для второй группы электроприемников:

Для третьей группы электроприемников:

 

Находим суммарное эффективное число для всего цеха:

nэ =SРн/S (Р1пр.*n)

Заносим полученные значения в колонку 10 таблицы 1.

7. Определяем коэффициент расчетной нагрузки Кр по таблице [4] 1.1

Заносим данные в колонку 11 таблицы 1.

Рассчитываем коэффициент среднего использования по группам:

Ки.ср=ΣКи*Рн,/Рн                                                                                                                                   (6); 

Для первой группы электроприемников:

Ки.ср.1=15,38/138,3=0,1 

Для второй группы электроприемников:


Ки.ср.2=57,9/289,8=0,2

Для третьей группы электроприемников:

Ки.ср.3=255,4/364=0,7

Находим суммарный коэффициент среднего использования по формуле:

Ки.ср=ΣКиРн/ΣРн                                                                              (7);

Ки.ср=328,71/792,1=0,4 

8. Определяем расчетную активную мощность для каждой группы по формуле:

Рр=КрКиРн                                                                                                                                                 (8);

Кр- коэффициент расчетной нагрузки;

Рр- расчетная активная мощность;

Для первой группы электроприемников:

Рр1=4,05*0,1*138,3=56,01

Для второй группы электроприемников:

Рр2=1,16*0,2*289,8=67,2

Для третьей группы электроприемников:

Рр3=1,0*0,7*364=254,8

Находим суммарную активную мощность для всего цеха:

SРр= Рр1+ Рр2+ Рр3

SРр=56,01+67,2+254,8=378,01 кВт

Заносим полученные значения в колонку 12 таблицы 1.

9. Определяем tgφСР.В. по формуле:

tgφср.в=Σtgφ*Pн/ΣPн

Для первой группы электроприемников:

tgφср.в.1=(1,73*28,8+1,73*68+2,29*1,15+2,35*40)/138,3=1,9

Для второй группы электроприемников:

tgφср.в.2=(2,35*32+2,35*100+1,16*42+1,15*27+2,29*28,8+2,35*60)/289,8= 2,1

Для третьей группы электроприемников:

tgφср.в.3=0,75*48+0,62*60+0,73*192+1,02*64/364=0,7

10.Определяем расчетную реактивную мощность по формуле:

При nэ ≤10

Qp=1,1КиРнtgφср.в                                                                                     (9);

При nэ >10


Qp=КиРнtgφср.в                                                                                                                                     (10);

Qp- реактивная мощность

Для первой группы электроприемников:

Так как nэ ≤10, то расчетная реактивная мощность определяется по формуле (9):

Qp1=1,1*0,1*138,3=15,2 кВар

Для второй группы электроприемников:

Так как nэ>10, то расчет делаем по формуле (10)

Qp2=0,2*289,8*2,1=121,7 кВар

Для третьей группы электроприемников:

Так как nэ>10, то расчет делаем по формуле (11)

Qp3=0,7*364*0,7=178,36 кВар

Находим суммарную реактивную мощность

Σ Qp= Qp1+ Qp2+ Qp3

Σ Qp=15,2+121,7+178,36+=315,26 кВар

Заносим полученные значения в колонку 13 таблицы 1.

11. Рассчитываем расчетную полную мощность для каждой группы по формуле:

                                                                       (12);


Sp-расчетная полная мощность

Для первой группы электроприемников:

=58,04 кВа

Для второй группы электроприемников:

=139,02 кВа

Для третьей группы электроприемников:

=311,02 кВа

Находим суммарную полную расчетную мощность для всего цеха

ΣSp=Sp1 +Sp2 +Sp3

ΣSp=58,04+139,02+311,02=508,08 кВа

Заносим полученные данные в колонку 14 таблицы 1.

12. Рассчитываем рабочий ток для каждой группы электроприемников по формуле:

Iр=Sp/*Uн                                                                                                                                          (13);

Iр-расчетный ток

Для первой группы электроприемников:

Ip=58,04/1,7*0,38=89,8 A


Для второй группы электроприемников:

Ip=139,02/1,7*0,38=215,2 A

Для третьей группы электроприемников:

Ip=311,02/1,7*0,38 A

Находим суммарный рабочий ток для всего цеха

ΣIp=Ip1+Ip2+Ip3

ΣIp=89,8+215,2+481,4=786,4 A

Заносим полученные данные в колонку 15 таблицы 1.

2.2 Расчет токов короткого замыкания

Задачей расчёта токов к.з. является определение действующего значения, установившегося тока к.з. (Iк) ударного тока к.з. (Iу). По току Iк проверяется оборудование на термическую устойчивость, по току Iу оборудование проверяют на динамическую устойчивость.

Составляем схему замещения участка цепи до точки короткого замыкания:

 

Рисунок 3 - Расчётная схема Рисунок 4 - Схема замещения


Принимаем за базисную мощность, мощность равную мощности генераторов или трансформаторов

Sб = Sтр = 508,08 кВА

Принимаем за базисное напряжение номинальное напряжение рассчитываемой сети:

Uб = Uн = 380 В

Сопротивление автоматического выключателя и сопротивление линии не учитываем, так как расстояние от системы питания до точки тока короткого замыкания незначительное.

Хнтр=0,01*Uк.з                                                                                 (14);

Хнтр=0,01*4,5=0,045 Ом

Определяем базисное сопротивление трансформатора по формуле:

Хб.тр =(Хн.тр*Sб)/Sн.тр                                                                                                                        (15);

Хб.тр =(0,045*508,08)/400=0,06 Ом

Хн.тр- номинальное реактивное сопротивление трансформатора

Sб- базисная мощность

Sн.тр- номинальная мощность трансформатора

Определяем трехфазный ток к.з:

Iк.з=Uср/(*Хб.тр)                                                                       (16);

Iк.з=0,4*103/*0,06=6666,7 А


Iк.з- ток короткого замыкания

Находим ударный ток по формуле:

Iу= * Iк.з*Ку                                                                             (17);

Iу-ударный ток

Ку- ударный коэффициент

Iу=*6666,7*1,8=16800,1 (А)

2.3 Выбор оборудования трансформаторной подстанции

2.3.1 Выбор трансформатора

Рассчитываем полную расчетную мощность:

Sp= 508,08 кВА

Sp- полная расчетная мощность.

Выбранную расчетную мощность делим на количество трансформаторов:

Sp1= Sp/2                                                                                         (18);

Sp1=508,08/2=254,01 Ква

Sp1- полная расчетная мощность 1-го трансформатора.

Определяем расчетную нагрузку одного трансформатора.

Выбираем мощность трансформатора по таблице [1] 5.2.1.:

Sтр.н=400 кВА

Sтр.н- номинальная полная расчетная мощность трансформатора.

Проверяем трансформатор на загрузочную способность.

Рассчитываем коэффициент загрузки:


Кз= Sp1/Sтр.н                                                                                                                                                             (19);

Кз=254,01/400=0,6

Следовательно, данная мощность трансформатора соответствует требованиям ГОСТ.

Проверяем трансформатор на перегрузочную способность в случае выхода из работы одного трансформатора. При двух и более трансформаторах мощность силового трансформатора выбирается по условию:

Spх≤1,4*Sтр.н                                                                                                                                            (20);

1,4Sтр.н=1,4*400=560 кВА

Spх≤1,4*Sтр.н

508,08≤560

По перегрузочной способности силовой трансформатор удовлетворяет условию.

Страницы: 1, 2


рефераты скачать
НОВОСТИ рефераты скачать
рефераты скачать
ВХОД рефераты скачать
Логин:
Пароль:
регистрация
забыли пароль?

рефераты скачать    
рефераты скачать
ТЕГИ рефераты скачать

Рефераты бесплатно, реферат бесплатно, рефераты на тему, сочинения, курсовые работы, реферат, доклады, рефераты, рефераты скачать, курсовые, дипломы, научные работы и многое другое.


Copyright © 2012 г.
При использовании материалов - ссылка на сайт обязательна.